Das „Halbe Haus“ in Gerswalde mit Architekturplanung von Thomas Kröger

Kaufpreis: 295.000 Euro
Gebäudenutzfläche: 90 m²


  • ⬘ Baujahr Gebäude: 1934
    ⬘ Baujahr Heizung: 2019
    ⬘ Gebäudenutzfläche: 90 m2
    ⬘ Pachtvertrag für Grünlandfläche: 250 Euro jährlich, inkl. MwSt.
    ⬘ Architekturplanung von Thomas Kröger
    ⬘ Waldgartenplanung von Rainer Elstermann

  • In der schönen Uckermark entstehen seit vielen Jahren idyllische Rückzugsorte, malerische Feriendomizile und Projekte, die nachhaltige und ganzheitliche Konzepte in den Mittelpunkt stellen. Kein Wunder, die reizvolle Landschaft hat alles zu bieten, wovon viele Erholungsuchende aus der großen Stadt träumen: üppige Wälder, unzählige Seen, Wanderwege und unberührte Natur. Als Naherholungsgebiet erfreut sich diese besonders beliebte Ecke der Uckermark seit Jahren einer steigenden Nachfrage. Die sanierungsbedürftige Haushälfte wurde bereits vom renommierten Architekten Thomas Kröger durchgeplant und wird zusammen mit dieser verkauft. Ein raffiniertes Gestaltungskonzept des Landschaftsplaners Rainer Elstermann liegt ebenfalls vor. Das Dachgeschoss birgt zusätzliches Ausbaupotential und auch ein Wärmpumpenanschluss wurde geplant. Eine reizvolle Grünlandfläche grenzt an das Grundstück und kann für 250€/ Jahr zusätzlich gepachtet werden.

    Zehn Minuten von der Autobahn 11, ca. eine Stunde von Berlin-Mitte und zwei Stunden vom Flughafen Berlin-Brandenburg entfernt. Die Ostsee ist in etwa eineinhalb Stunden zu erreichen.

 

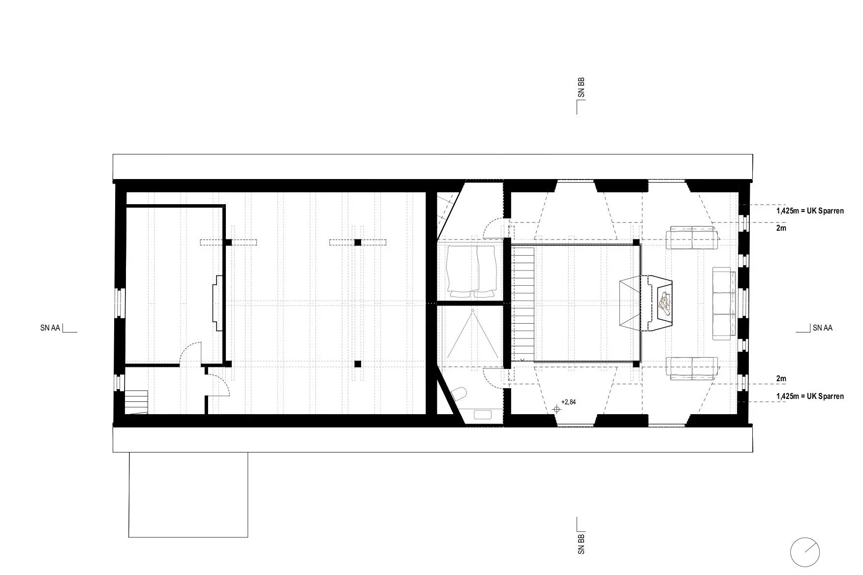
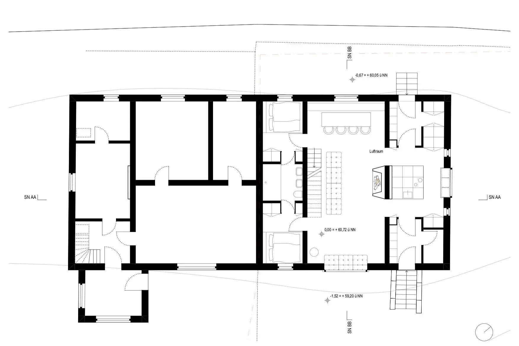
Grundriss

Die Vermittlung der Immobilie ist für den Käufer und Verkäufer zu gleichen ­Teilen provisionspflichtig. Die Gesamtprovision beträgt vom beurkundeten Kaufpreis, 7,14 % inkl. gesetzlicher MwSt., ­wovon Käufer und Verkäufer je die Hälfte, also jeweils 3,57 % inkl. gesetzlicher MwSt. nach Abschluss des notariellen Kaufvertrages an ­Florin ­Immobilien zu zahlen haben.


Ort

 
Zurück
Zurück

Exklusives Baugrundstück in außergewöhnlicher Naturlage mit genehmigter Architektenplanung von Thomas Kröger

Weiter
Weiter

Ikonische Architektur und urbaner Lifestyle – „Kleiner Wolkenkratzer“ in Toplage der Berliner Innenstadt