Villa Edelstein – Ein architektonisches Unikat mit beeindruckender Großzügigkeit in Berlins exklusivster Lage

Kaufpreis: Auf Anfrage
Grundstück: ca. 1.366 m²
Wohnfläche: ca. 612,59 m²

Villa Edelstein – An Architectural Masterpiece with Impressive Grandeur in Berlin’s Most Exclusive Location
Purchase price: On request


  • ⬘ Konsistente Material- und Farbkonzepte
    ⬘ Seltener historischer Ziegelbau
    ⬘ Zwei Altane: Eingangsaltan mit allegorischen Darstellungen des Handels, repräsentativer Altan vom Schlafzimmer zum Garten
    ⬘ Zwischenetagen getreu der Bauzeit mit Sand isoliert
    ⬘ Verwendung von KT-Farben
    ⬘ Oberflächen und Einbauten wurden nach historischem Vorbild von Hand gepinselt
    ⬘ Rekonstruierte historische Türklinken
    ⬘ Hochwertig restaurierte Holztreppe mit rundbogigen Gewölben
    ⬘ Einbauten in Tischler-Einzelanfertigung
    ⬘ Edle Wandpaneele und nachgearbeitete Heizkörperverkleidungen
    ⬘ Klassische Schalterprogramme im ganzen Haus
    ⬘ Originales, genageltes Eichenparkett im Wohnbereich, maßlich angepasstes Eichenparkett im Essbereich
    ⬘ veredelte Solnhofener Platten in der Küche
    ⬘ Große Kastenfenster
    ⬘ Grundofen mit aktivierter Wandfläche und integrierter Warmluftführung
    ⬘ Offener Kamin im Wohnzimmer mit Sandsteinumrandung, schwarzem Schamotteinsatz und Messing-Funkenschutz
    ⬘ Maßgefertigte Küche in harmonischer Materialabstimmung
    ⬘ Exklusive Badeausstattung, Soho Bath von The Water Monopoly und hochwertiges britishes Badinterior
    ⬘ Großzügige Keller- und Dachgeschossräume
    ⬘ Atelierhaus im Garten
    ⬘ Spitzboden

    Key Facts
    ⬘ Consistent materials and colour palettes
    ⬘ Rare historic brick building
    ⬘ Entrance veranda with allegorical representations of trade, above which
    ⬘ a representative balcony from the master bedroom overlooks the garden
    ⬘ Intermediate floors insulated with sand, in keeping with the period of construction
    ⬘ Historical paint palettes by kt.COLOR of Switzerland
    ⬘ Surfaces and fixtures are hand-painted according to historical models
    ⬘ Reconstructed, historically correct door handles
    ⬘ High-quality restored wooden staircase with rounded arched vaults
    ⬘ Bespoke joinery and cabinetry
    ⬘ Elegant wall panelling and refurbished radiator covers
    ⬘ Classic lighting switches and electrical sockets throughout the house
    ⬘ Original, nailed oak parquet flooring in the living area, and custom-fitted
    ⬘ oak parquet flooring in the dining area
    ⬘ Refined Solnhofen flagstones in the kitchen
    ⬘ Large box-type windows
    ⬘ High-efficiency radiant-heat system with an activated wall surface and integrated warm-air ducting
    ⬘ Open fireplace in the living room with a sandstone surround, black fireclay insert, and brass spark-guard
    ⬘ Bespoke kitchen with harmoniously coordinated materials
    ⬘ Exclusive bathroom fixtures, including the Soho Bath by The Water Monopoly and high-quality British bathroom interiors
    ⬘ Spacious basement and attic rooms
    ⬘ Studio house in the garden
    ⬘ Hipped attic/loft areas

  • Villa Edelstein – eine historische Architektur-Ikone
    Die Villa Edelstein, 1922–23 von Eugen Schmohl (Borsigturm, Ullsteinhaus) für den Kaufmann Nathan Edelstein erbaut, zählt zu den architektonischen Perlen ­Zehlendorfs. Als Ziegelbau mit kunstvoll ge­gliederter, ­asymmetrischer Klinkerfassade hebt sie sich deutlich von den Nachbarhäusern ab und verbindet traditionelle Formen wie Walmdach und Klappläden mit einem ­expressionistischen Charakter. ­Ausdrucksstarke Schmuckelemente über dem Eingang thematisieren allegorisch den Handel und verweisen auf die Herkunft der Kaufmannsfamilie Edelstein. Die Villa wurde 1933 zu einem Mehrfamilienhaus umgestaltet, um 1990 zu einem Bürogebäude umfunktioniert und 2015 wieder in ihren ursprünglichen Zustand zurückgeführt. Die Einfriedung des Vorgartens greift Materialität und Gestaltungsprinzipien des Hauses auf und rundet das Gesamtbild harmonisch ab.

    Begehrte Berlin-Lage Dahlem
    Die Villa liegt im Berliner Ortsteil Dahlem, einer der exklusivsten Wohn­adressen der Hauptstadt. Die Umgebung ist geprägt von freistehenden Villen der 1920er Jahre, gepflegten Gärten und einem ruhigen, grünen Stadtbild. In der Nachbarschaft finden sich neben hochwertiger ­Wohnbebauung auch einzelne Botschaften. Direkt gegenüber erstreckt sich die Domäne Dahlem – ein historisches Landgut mit Biobauernhof, Museum und kulturellen ­Angeboten. Einkaufsmöglichkeiten, Bildungseinrichtungen und medizinische ­Versorgung sind von höchster Qualität und sehr gut ­erreichbar. Bus- und U-Bahn-­Anbindungen liegen fußläufig, während die Pacelliallee selbst ein mittleres Verkehrsaufkommen aufweist.

    Eleganz im Detail – Die Wiederentdeckung einer Berliner Villa
    Schmohl schuf hier ein Wohnhaus von ­besonderer Eleganz und Raffinesse. ­Ursprünglich als repräsentatives Familienhaus konzipiert, bietet die Villa heute wieder eine ungewöhnlich differenzierte Raumfolge: Straßenseitig liegen Diele, Wohnraum und das frühere Herrenzimmer, während sich zur ­Gartenseite Küche, Anrichte und ein lichtes Esszimmer mit Erker orientieren. Im Ober­geschoss befinden sich Schlaf- und ­Privaträume, geordnet um einen zentralen Flur. Hier liegen zwei exzeptionelle Bäder, die mit hochwertigen Materialien, fein ­abgestimmter Farbgebung und britischem Badinterior das Haus atmosphärisch ­ergänzen.

    Villa Edelstein – a Historic Architectural Icon
    Villa Edelstein, built between 1922 and 1923 by Eugen Schmohl (known for Berlin’s landmark Borsig Tower and Ullstein House) for the merchant Nathan Edelstein, ranks among Zehlendorf’s architectural gems. Of brick construction with an elaborately articulated, asymmetrical clinker façade, it is distinct from neighbouring properties, combining traditional forms such as a hipped roof and shutters with an Expressionist character. Highly expressive decorative elements above the entrance provide allegorical depictions of trade, referencing the Edelstein family’s mercantile background. The villa was converted into a multi-family residence in 1933, repurposed as an office building around 1990, and restored to its original condition in 2015. The enclosure of the front garden echoes the materials and design principles of the house, harmoniously completing the overall aesthetic.

    Sought-After Berlin Location: Dahlem
    Villa Edelstein is located in the Berlin district of Dahlem, one of the capital‘s most exclusive residential addresses. The surrounding area is characterized by detached villas from the 1920s, well-maintained gardens, and a tranquil, green cityscape. The neighbourhood features high-quality residential properties and several embassies. Directly opposite the villa is Domäne Dahlem, a historical country estate featuring an organic farm, a museum, and offering cultural events. Shopping facilities, educational institutions, and medical services are of the highest quality and very easily accessible. Bus and underground (U-Bahn) connections are within walking distance, while Pacelliallee itself experiences moderate traffic volumes.

    Elegance in the Details – The Rediscovery of a Berlin Villa
    In Villa Edelstein, Eugen Schmohl created a residence of exceptional elegance and sophistication. Originally conceived as a prestigious family home, the restored villa once again offers an unusually varied sequence of rooms: Facing the street are the entrance hallway, living room, and the classic former study, while the kitchen, pantry, and a bright dining room with bay window are oriented toward the garden side. The upper floor is dedicated to the private quarters and bedrooms, arranged around a central hallway. This level features two exceptional bathrooms, which complement the atmosphere of the house with their high-quality materials, meticulously coordinated colouring, and British interiors.



 

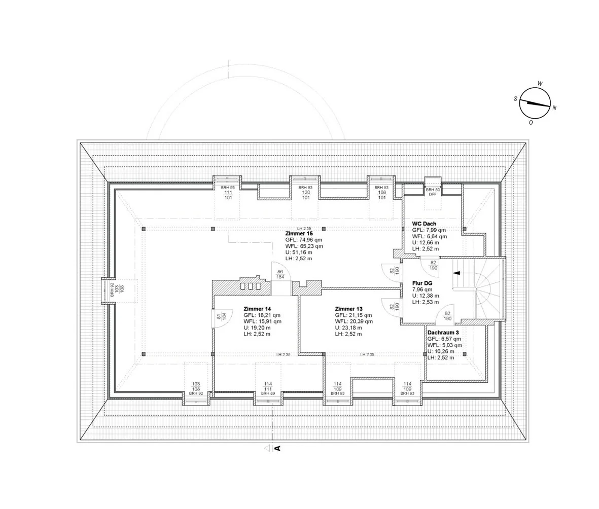
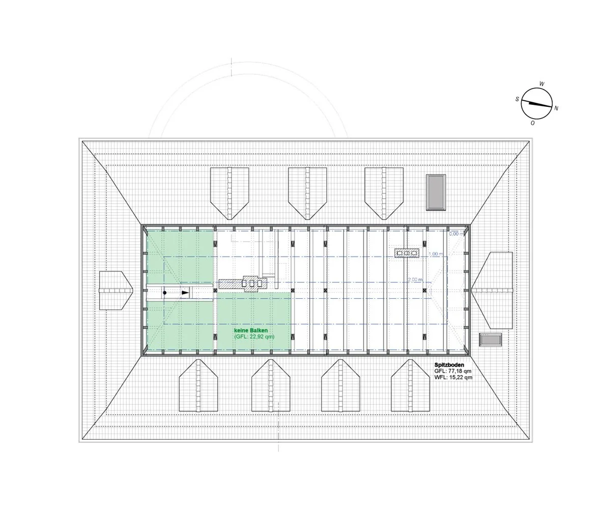
Grundrisse

Ein Energieausweis ist nicht erforderlich, da das Gebäude gemäß § 79 Absatz 4 GEG unter Denkmalschutz steht.

Ort

 
Zurück
Zurück

Architektonisches Meisterwerk – Exklusive Design-Maisonette aus der Feder von Thomas Kröger

Weiter
Weiter

Charmantes und großzügiges Einfamilienhaus nahe dem Heiliger See in der Berliner Vorstadt