Zuhause über den Dächern Berlins – Charmante Maisonette am Wasserturm, möbliert und sofort bezugsfrei

Mietpreis: 3.200 Euro pauschal, Befristung 1-2 Jahre

Wohnfläche: ca. 87 m²


  • ⬘ Lichtdurchflutete Dachgeschoss-Maisonette
    ⬘ Ca. 87 m² Wohnfläche mit eleganter Möblierung
    ⬘ 3 Zimmer, davon zwei Schlafzimmer
    ⬘ Großzügiger Wohn- und Essbereich im 5. OG mit Panoramafenstern, Sonnen-Terrasse und schicker Einbauküche
    ⬘ Lichtdurchflutete Wohnung
    ⬘ Innentreppe als Verbindung zwischen den beiden Ebenen
    ⬘ Zwei flexibel nutzbare Schlafzimmer im 4. Obergeschoss mit Balkon
    ⬘ Fußbodenheizung im Bad
    ⬘ Aufzug
    ⬘ Zeitloses Fischgrätparkett in allen Wohnräumen
    ⬘ Tageslichtbad mit Dusche und Badewanne
    ⬘ Separates Gäste-WC
    ⬘ Ruhige Lage im Seitenflügel – mitten im Kiez und dennoch abgeschirmt vom Trubel
    ⬘ Direkt am Wasserturm Prenzlauer Berg
    ⬘ Hochwertig saniertes Ensemble
    ⬘ Tiefgaragenstellplatz fußläufig
    ⬘ Gepflegter Innenhof
    ⬘ Kurzfristig bezugsfrei

  • Lebendige Kiezlage zwischen Wasserturm und Kollwitzplatz
    Die Diedenhofer Straße liegt im Herzen des Prenzlauer Bergs, nur wenige Schritte vom ikonischen Wasserturm und dem beliebten Kollwitzplatz entfernt. Diese Lage zählt zu den begehrtesten Wohnadressen Berlins – ein Ort, der urbanes Leben, architektonischen Charme und gewachsene Nachbarschaftskultur auf einzigartige Weise verbindet. Der Kollwitzplatz ist weit über die Stadtgrenzen hinaus bekannt: mit seinem zweimal wöchentlich stattfindenden Wochenmarkt, dem Biomarkt am Samstag und den zahlreichen Straßencafés bildet er das lebendige Zentrum des Kiezes. Hier trifft man sich zum Frühstück unter alten Bäumen, bummelt durch kleine Boutiquen oder genießt am Abend die Vielfalt an Restaurants und Bars. Schulen, Kitas und Einkaufsmöglichkeiten sind ebenfalls bequem zu Fuß erreichbar – perfekt für ein urbanes Leben mit kurzen Wegen. Die Anbindung an den öffentlichen Nahverkehr ist exzellent: Die U-Bahnstationen Senefelderplatz und Rosa-Luxemburg-Platz (U2) sowie mehrere Tram- und Buslinien bringen Sie schnell in alle Teile der Stadt.

    Helle Dachgeschoss-Maisonette mit Balkon und Terrasse
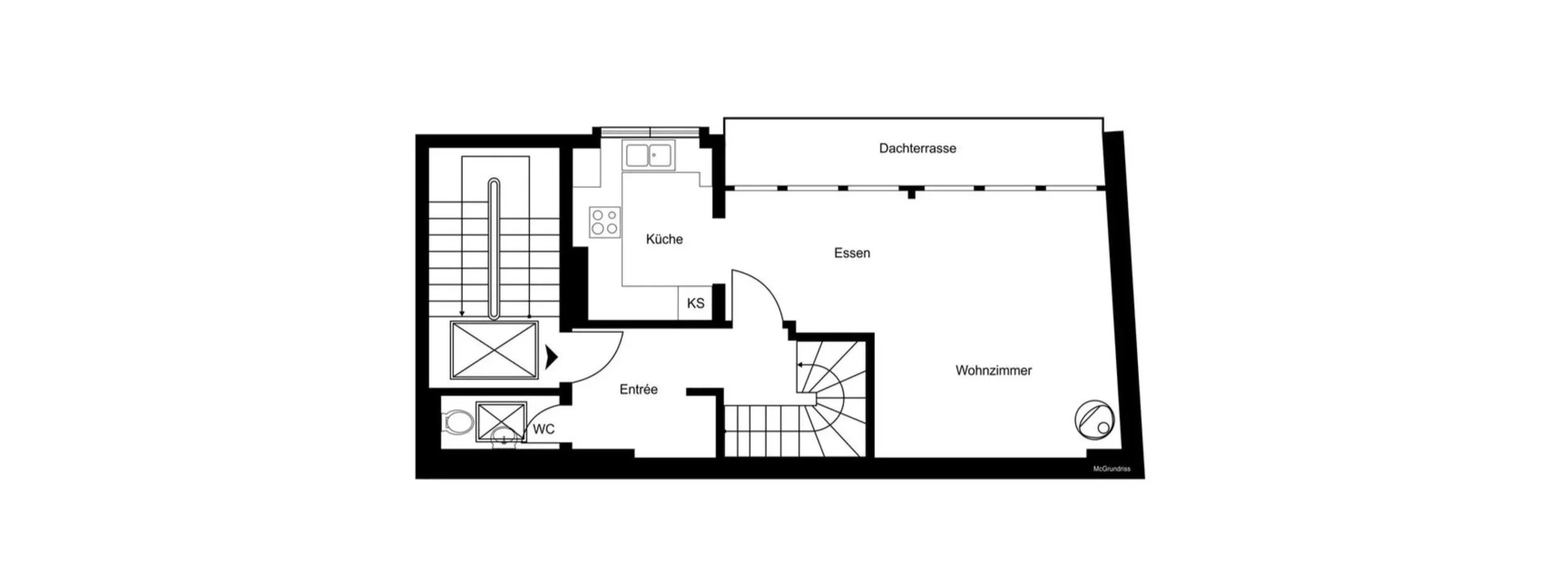
    Die Dachgeschoss-Maisonette befindet sich im ruhigen Seitenflügel eines sanierten, denkmalgeschützten Jugendstil-Altbaus am Wasserturmplatz und ist bequem per Aufzug erreichbar. Die Wohnung präsentiert sich in sehr gepflegtem Zustand und überzeugt durch eine helle, klare Raumwirkung und hochwertiges Parkett. Das 5. Obergeschoss bildet den Mittelpunkt der Wohnung: Der großzügige Wohn- und Essbereich mit raumhohen Fensterfronten lässt sich vollständig zur Terrasse über die gesamte Raumlänge öffnen und schafft ein außergewöhnliches Wohngefühl. Innen- und Außenraum gehen hier fließend ineinander über und verleihen der Wohnung einen offenen, luftigen Charakter. Die integrierte, voll ausgestattete Einbauküche sowie zwei praktische Kammern bieten zusätzlichen Komfort und Stauraum. Im 4. Obergeschoss befinden sich zwei flexibel nutzbare Zimmer, beide mit eigenem Balkonzugang, einer davon mit Feuertreppe. Ein modernes Tageslichtbad mit Walk-In-Dusche und Badewanne, ein separates Gäste-WC sowie ein großzügiger Eingangsbereich runden das Angebot ab. Sämtliche Wohn- und Schlafräume verfügen über Balkone und unterstreichen das besondere Zusammenspiel von Innen- und Außenflächen, das diese Maisonette-Wohnung auszeichnet.

 

Grundrisse

 
Zurück
Zurück

Außergewöhnliche Maisonette im Achitektenhaus – In Szene gesetzt von Designer Fernando Laposse

Weiter
Weiter

Großzügiger Altbau-Charme – Elegante Gewerbeeinheit im Herzen von Charlottenburg