Exklusives Baugrundstück in außergewöhnlicher Naturlage mit genehmigter Architektenplanung

Kaufpreis (Grundstück inkl. Planung): 195.000 Euro


  • ⬘ Grundstück ca. 642 m²
    ⬘ Lage am Ortsrand von Niederfinow zwischen Finowkanal und Biosphärenreservat Schorfheide-Chorin
    ⬘ Genehmigte Hausplanung vom Architekten Thomas Kröger
    ⬘ Geplante Brutto-Grundfläche des Hauses ca. 240 m²
    ⬘ Hanggrundstück an der Choriner Straße
    ⬘ Großzügige Fensterflächen und Terrassen zum Garten und zur Landschaft
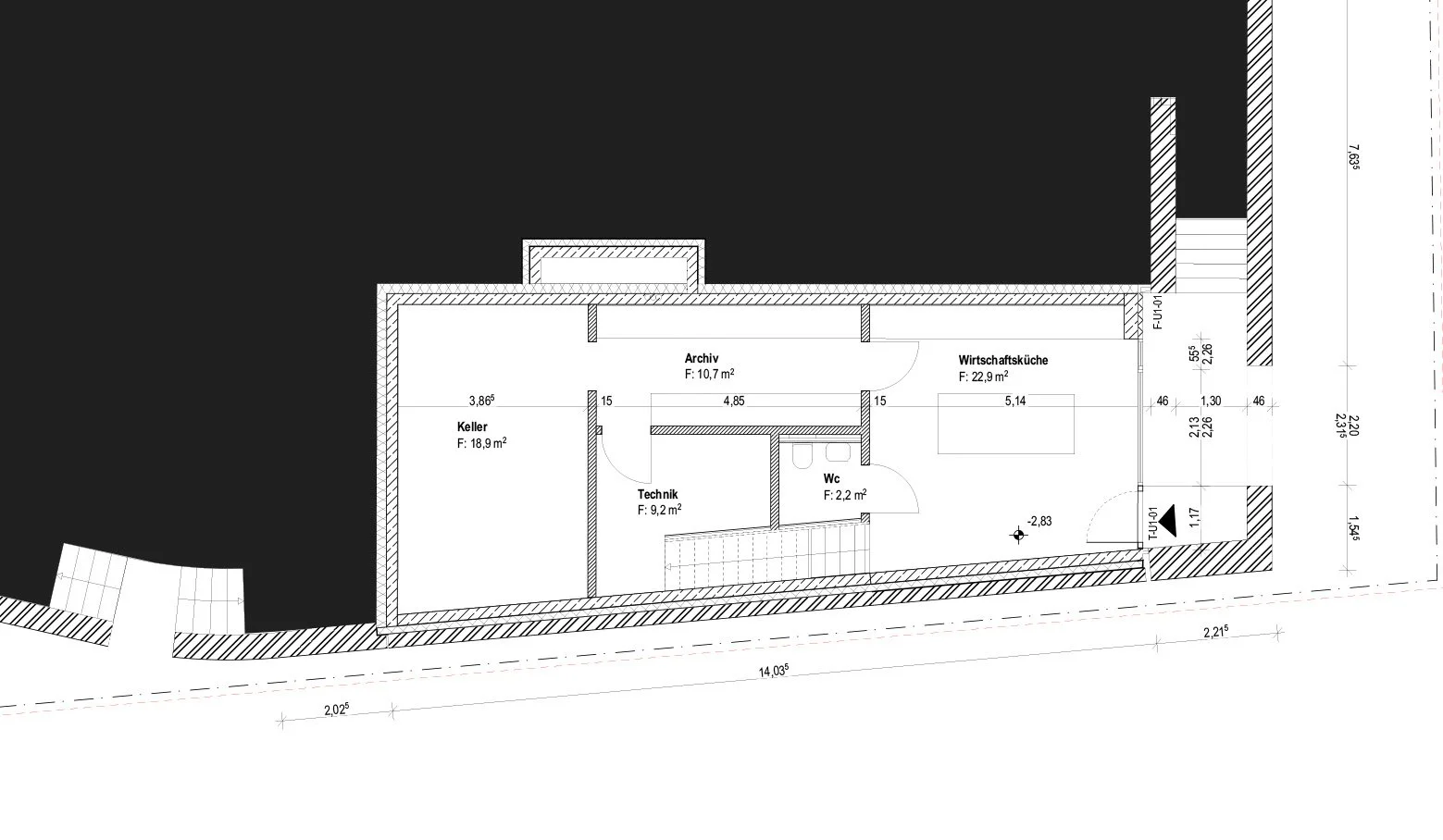
    ⬘ Voll unterkellert mit direktem Gartenzugang
    ⬘ Geschützter Hofbereich mit hoher Privatsphäre
    ⬘ Erdgeschoss mit großer Wohnküche ca. 72 m²
    ⬘ Obergeschoss mit flexibel nutzbaren Studios und Bädern
    ⬘ Dachgeschoss mit großem Raum, Bad und optionaler Loggia
    ⬘ Berlin in weniger als einer Stunde erreichbar

  • In einzigartiger Lage am zentralen Ortsrand von Niederfinow, am Übergang vom Finowkanal zum Biosphärenreservat Schorfheide-Chorin, präsentiert sich dieses 642 m² große Grundstück mit einer genehmigten Hausplanung des renommierten Architekten Thomas Kröger als seltene Gelegenheit für Liebhaber anspruchsvoller Architektur. Die Planung sieht ein außergewöhnliches Wohnhaus mit ca. 240 m² Brutto-Grundfläche vor, das Landschaft, Topografie und Architektur zu einem harmonischen Ganzen verbindet.

    Die besondere Hanglage entlang der Choriner Straße prägt das architektonische Konzept: Das Gebäude folgt mit seiner ansteigenden Dachlinie dem Straßenverlauf und richtet seine Stirnseite bewusst auf die historische Dorfkirche von Niederfinow aus. Zur Straße hin zeigt sich das Haus ruhig, reduziert und schützend, während es sich zum Garten und zur offenen Landschaft großzügig, lichtdurchflutet und transparent öffnet. Großzügige Fensterflächen, Terrassen und Blickachsen eröffnen weite Ausblicke über unbebaute Felder, insbesondere in östlicher Richtung.

    In seiner Formensprache interpretiert das Haus traditionelle Baukörper der Umgebung zeitgemäß neu und erinnert in seiner Erscheinung an eine moderne Scheune. Ein markanter Schornstein bildet das architektonische Rückgrat des Gebäudes und schafft im Inneren atmosphärische Räume – vom Kamin im Erdgeschoss bis zur Sitznische mit Panoramafenster im Dachgeschoss. Der voll unterkellerte Baukörper bietet neben funktionalen Flächen einen ebenerdigen Gartenzugang sowie einen geschützten Hofbereich, der Privatsphäre und Ruhe gewährleistet.

    Das Erdgeschoss ist als großzügige, ca. 72 m² große Wohnküche konzipiert, in der unterschiedliche Raumhöhen und Sichtachsen ein fließendes, hochwertiges Wohngefühl entstehen lassen. Im Obergeschoss eröffnen flexibel nutzbare Studios und elegant gestaltete Bäder individuelle Rückzugsorte. Das Dachgeschoss bildet einen großzügigen, lichtdurchfluteten Raum mit separatem Bad, optionaler Loggia und eindrucksvollem Weitblick über die umliegende Kulturlandschaft – ideal als Atelier, Arbeits- oder Rückzugsraum.

    Die Umgebung vereint naturnahe Ruhe mit kultureller Vielfalt: Weitläufige Naturschutzgebiete, Wälder und Seen prägen die Region, ergänzt durch ein vielfältiges Freizeit- und Kulturangebot in Eberswalde, Kloster Chorin und Schloss Neuhardenberg. Der fußläufig erreichbare Bahnhof Niederfinow bietet eine komfortable Anbindung nach Berlin in weniger als einer Stunde.

    Ein außergewöhnliches Angebot für Käufer, die höchste architektonische Qualität, landschaftliche Einbettung und eine seltene Lage mit urbaner Erreichbarkeit zu schätzen wissen.

 

Grundrisse

Erdgeschoss

Obergeschoss

Dachgeschoss/Keller

Untergeschoss

Schnitt Hauslänge

Schnitt Hausbreite

Ort

 
Zurück
Zurück

Haus Herrenstein in der Uckermark – Landhaus auf 11.000 m² Grundstück in absoluter Alleinlage

Weiter
Weiter

Wohnen in Architekturgeschichte – Charmantes Ein-Zimmer-Apartment im Hansaviertel