Ikonische Architektur und urbaner Lifestyle – „Kleiner Wolkenkratzer“ in Toplage der Berliner Innenstadt

Kaufpreis: Auf Anfrage

Wohnfläche: ca. 398 m²
Grundfläche: ca. 685 m²


  • ⬘ Townhouse (Reihenmittelhaus)
    ⬘ sieben Stockwerke
    ⬘ Dachgeschoss: Staffelgeschoss
    ⬘ Flachdach als begrüntes Umkehrdach
    ⬘ Keller
    ⬘ großzügige Atrien oder Lufträume zur natürlichen Belichtung sowie hochwertige Fassadengestaltungen
    ⬘ Straßenseitig transluzente Dreischeiben-Isolierverglasung mit Prismeneinlage als Pfosten-Riegel-Konstruktion
    ⬘ Hofseitig vollständige Verglasung mit Schiebeelementen sowie Dreh-Kipp-Flügeln
    ⬘ Fenster mit Dreifachverglasung
    ⬘ Zentralheizung mit Erd-Wärmepumpe, Fußbodenheizung
    ⬘ Hygienische Warmwasserbereitung im Durchlaufprinzip über zentralen Heizungsspeicher
    ⬘ Moderne Sanitärausstattung
    ⬘ Bodenbelag Estrich
    ⬘ Balkone unterschiedlicher Größe in den Obergeschossen, Terrasse im Erdgeschoss
    ⬘ Außenanlagen befestigt und begrünt
    ⬘ Stellplatz im Gebäude
    ⬘ Aufzug
    ⬘ Weichwasseranlage
    ⬘ Solarthermiekollektoren
    ⬘ Hochwertige Schiebewände und Einbaumöbel
    ⬘ Exklusive Bulthaup-Küche mit Gaggenau Geräten
    ⬘ Gas- und Fernwärmeanschluss vorhanden

  • Townhouse am Friedrichswerder – Zeitgenössische ­Architektur im historischen Zentrum Berlins
    Das Townhouse befindet sich am westlichen Friedrichswerder in Berlin-Mitte, unmittelbar neben dem ­Auswärtigen Amt und in direkter Nähe zur Museumsinsel. Das Townhouse-Quartier entstand zwischen 2005 und 2007 als Teil der städtebaulichen „kritischen Rekonstruktion“ Berlins und markiert einen ­besonderen ­Moment der Stadtentwicklung nach der Jahrtausend­wende. ­Im Regierungsviertel ­gelegen, ­ver­bindet der Standort historische Stadträume mit zeit­genössischer ­Architektur. Die Umgebung ist ­geprägt von ­kulturellen Institutionen, politischen Einrichtungen und kurzen ­Wegen innerhalb der ­Innenstadt – eine ­urbane Lage, die in dieser Form in ­Europa selten ist.

    Wohnen und Arbeiten im urbanen Kontext – Ein Stadthaus für das 21. Jahrhundert
    Das Townhouse Spiekermann ist eines von ­insgesamt 47 individuell geplanten Stadthäusern dieses ­Ensembles. Bei einer Grundstücksbreite von rund 6,5 ­Metern entwickelt sich das Gebäude über mehrere Geschosse und ist unterkellert. Die Architektur folgt ­klaren städtebaulichen Vorgaben, bleibt jedoch als eigenständiger Baukörper ablesbar. Großzügige ­Lufträume und Atrien sorgen für natürliche Belichtung, die Konstruktion berücksichtigt hohe technische und ­funktionale Anforderungen, etwa im Umgang mit Grundwasser. Das Haus ist für eine gemischte ­Nutzung aus ­Wohnen und Gewerbe zugelassen und eignet sich damit sowohl für kombinierte Arbeits- und ­Lebensmodelle, als auch für eine wirtschaftlich sinnvolle Teilvermietung. Die Gestaltung ist bewusst nicht ­nostalgisch, ­sondern ­formal und technisch im 21. Jahrhundert verankert – gedacht für Nutzerinnen und ­Nutzer, die ­urban, zeitgemäß und architekturbewusst wohnen und arbeiten möchten.

 

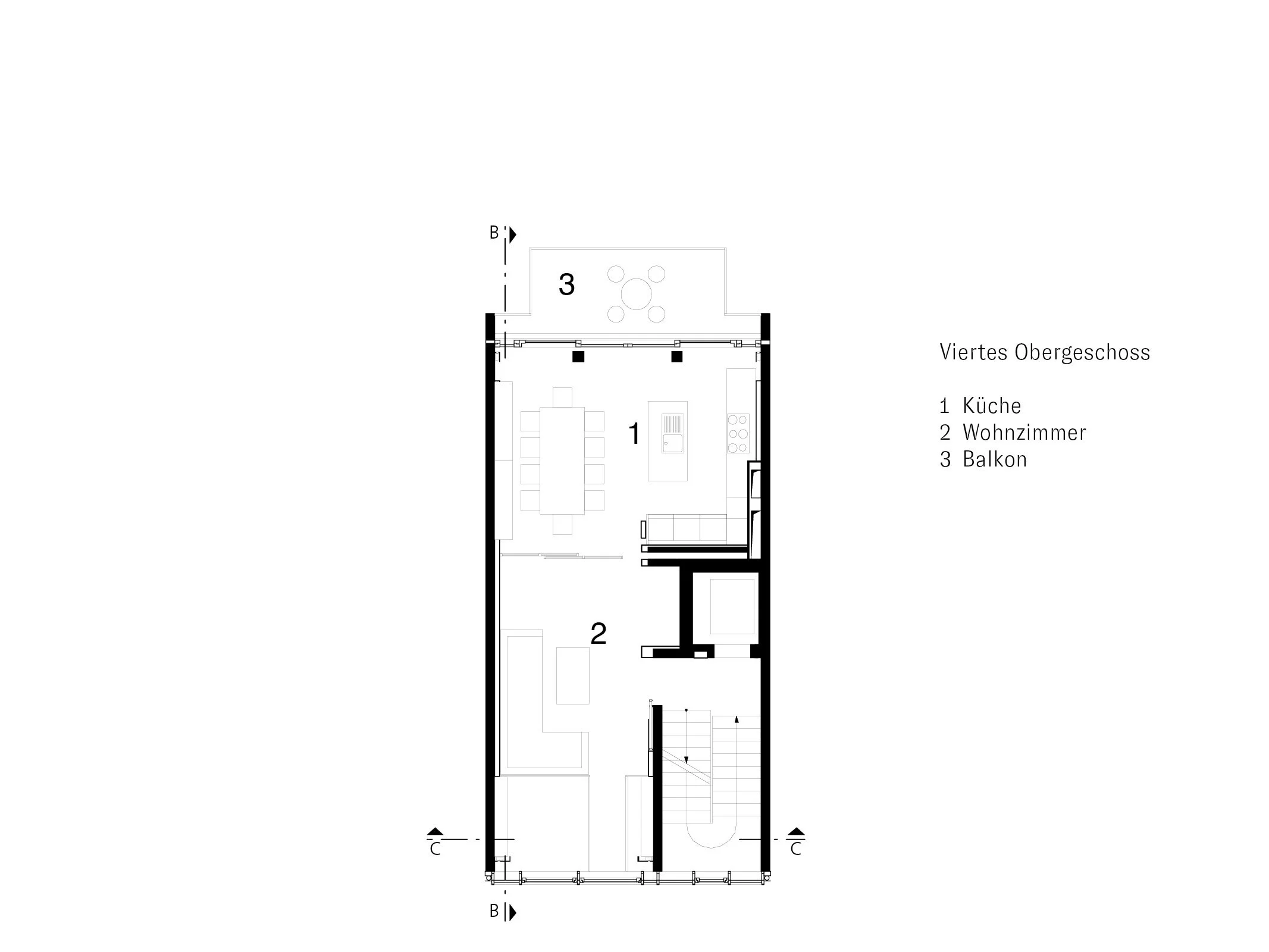
Grundrisse

Energieausweis gültig bis 26.03.2035 – Baujahr Wärmeerzeuger 2007, Endenergieverbrauch des Gebäudes 43,4 kWh/(m²·a) – A – Geothermie, Wärmepume, Solarthermie

 
Zurück
Zurück

Villa Edelstein – Ein architektonisches Unikat mit beeindruckender Großzügigkeit in Berlins exklusivster Lage

Weiter
Weiter

Charmantes und großzügiges Einfamilienhaus nahe dem Heiliger See in der Berliner Vorstadt